Душевая дверь CEZARES ECO-O-BS-12-90-C-Cr
Артикул:ECO-O-BS-12-90-C-Cr
О товаре
Высокопрочное закаленное стекло
Закаленное стекло
Характеристики
Материал профиля
анодированный алюминий
Цвет полотна двери
Прозрачный
Серия
ECO
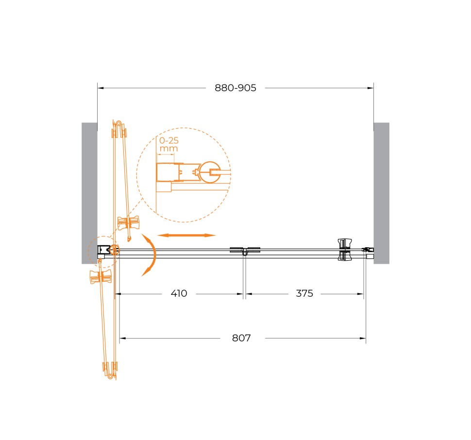
Ширина мм
900 м
Высота мм
1950 м
Форма
прямоугольная
Регулируемая ширина мм
88-90,5
Тип открывания дверей
Складная
Количество дверей
1
Толщина стекла
6 мм
Тип стекла
Прозрачная
Обработка стекла
Нет
Ширина входа, мм
807
Ориентация
универсальная
Монтаж
Напольный, на поддон, в нишу
Вес
28 кг
Бренд
CEZARES
Страна
Италия
Гарантия
3 года
Комплектация
Петли с подъемным механизмом
Поддон в комплекте
нет, приобретается отдельно
Цвет профиля
хром

























