Душевой уголок Слим 8мм (Slim 8mm) VSS-4SL900CLB, 900*900, черный матовый, стекло прозрачное
Артикул:VSS-4SL900CLB
О товаре
Характеристики
Серия
Слим 8мм (Slim 8mm)
Материал
алюминий
Ширина мм
900 мм
Высота мм
1950 мм
Глубина мм
900 мм
Форма
квадратная
Цвет
черный
Тип открывания дверей
раздвижная
Количество дверей
2
Толщина стекла
8 мм
Тип стекла
прозрачное
Обработка стекла
Easy Clean
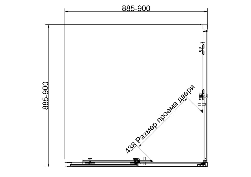
Регулировочные размеры
870-890 x 870-890
Ширина входа, мм
438
Вес
70 кг
Бренд
Vincea
Страна
Италия
Гарантия
3 года


























