Инсталляция для подвесного унитаза IBERICA BLANCA SILENCIO SENSOR с комбинированным управлением (сенсор+механическая клавиша) IB.001S
Артикул:IB.001S
О товаре
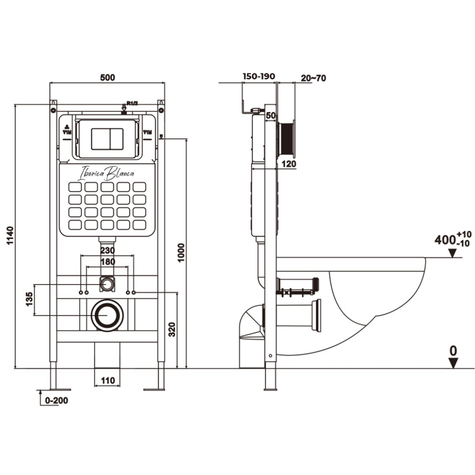
Инсталляция для подвесных унитазов Iberica Blanca SILENCIO SENSOR представляет собой надежное и практичное решение для вашей ванной комнаты. Она совместима со всеми типами подвесных унитазов, у которых межосевое расстояние для крепления 180 или 230 мм. Рама инсталляции выполнена из высокопрочной стали с антикоррозийным покрытием, что обеспечивает надежность и долговечность. Она способна выдерживать нагрузку до 400 кг, обеспечивая безопасность использования.
Цельнолитой сливной бачок с изготовлен из HDPE пластика, который является безопасным и нетоксичным материалом. Устойчив к гниению, предотвращает образование плесени и грибка, обеспечивая долгий срок службы. Бачок дополнительно изолирован пористым материалом от шума, что делает работу сливного и заливного механизма максимально тихим по сравнению с другими инсталляциями. Гарантия действует 10 лет с момента покупки.
Инсталляция оснащена комбинированным двухрежимным сливом с регулировкой: малый смыв — от 3 до 4,5 литра, большой — от 6 до 9 литров, что делает её эффективной и экономичной, позволяя настроить смыв в зависимости от ваших нужд. В комплетке блок питания 5 В который питается от сети 220 В или от четырех батареек типа AA, бесконтактный сенсор посылает сигнал о смыве, срабатывает на расстоянии до 80 сантиметров.
Глубина инсталляции составляет 120 мм, высота - 1140 мм с регулируемыми ножками в диапазоне от 0 до 200 мм, ширина - 50 см. Крепление инсталляции осуществляется к фронтальной стене. Предустановлен сливной клапан для защиты от перелива. Подвод воды осуществляется сверху бачка, латунный фитинг 1/2.
Обслуживание инсталляции не требует инструментов или разбора благодаря быстросъемной кнопке. Диаметр выпуска в канализацию составляет DN 90/110.
Инсталляция от Iberica Blanca — это не просто функциональное устройство, это залог комфорта и спокойствия на десятилетия вперёд. Главное преимущество перед другими брендами заключаются в следующих особенностях:
– совместима со всеми типами подвесных унитазов, межосевое расстояние которых составляет 180 или 230 мм.
– независимая регулировка малого и полного смыва: малый смыв регулируется от 3 до 4,5 л, большой от 6 до 9 л. Бесконтактный сенсор настроен с завода на малый смыв, механичекская клавиша на большой, что делает ее эффективной и экономичной. При необходимости можно изменить настройку.
– цельнолитой сливной бачок из HDPE пластика имеет шумоизоляцию и дополнительные ребра жесткости, так же в комплекте идет шумоизоляционная пластина для подвесного унитаза
– сливной клапан для защиты от перелива
– впускной кран позволяет перекрыть поток воды в бачок отдельно от общей системы водоснабжения, подвод воды осуществляется сверху бачка, латунный фитинг 1/2
– фильтр грубой очистки предустановлен с завода и легкодоступен
– ножки рамы регулируются в диапазоне от 0 до 200мм.
– рама инсталляции выполнена из высокопрочной стали с антикоррозийным покрытием, что обеспечивает надежность и долговечность
– гарантия действует 10 лет с момента покупки, гарантия наличия запасных частей
– сертификат соответствия: РОСС RU.32311.ОС04.СС01.5102
Инсталляция для подвесных унитазов Iberica Blanca SILENCIO SENSOR представляет собой надежное и практичное решение для вашей ванной комнаты. Она совместима со всеми типами подвесных унитазов, у которых межосевое расстояние для крепления 180 или 230 мм. Рама инсталляции выполнена из высокопрочной...
Характеристики
Серия
SILENCIO SENSOR
Направление выпуска
горизонтальное (в стену)
Ширина мм
500 м
Высота мм
1140 м
Глубина мм
120 м
Цвет
синий
Монтаж
скрытый в стену, в капитальную стену и пол
Управление
сенсорное / механическое
Бренд
IBERICA BLANCA
Страна
Китай
Гарантия
25 лет
Вес
16 кг
Дополнительная информация
обслуживание через ревизионное окно / антивандальность / пониженный уровень шума / защита от конденсата / комбинированый смыв (бесконтактный сенсор+механическая кнопка)
Комплектация
Инсталляция для подвесного унитаза
Назначение
для подвесного унитаза
Объем, л
9
Режим слива воды
2 режима (эконом)































