Душевая перегородка IBERICA BLANCA Mod.602 Walk In матовое стекло/хром 100х200см (IB602.MC.200.100)
Артикул:IB602.MC.200.100
О товаре
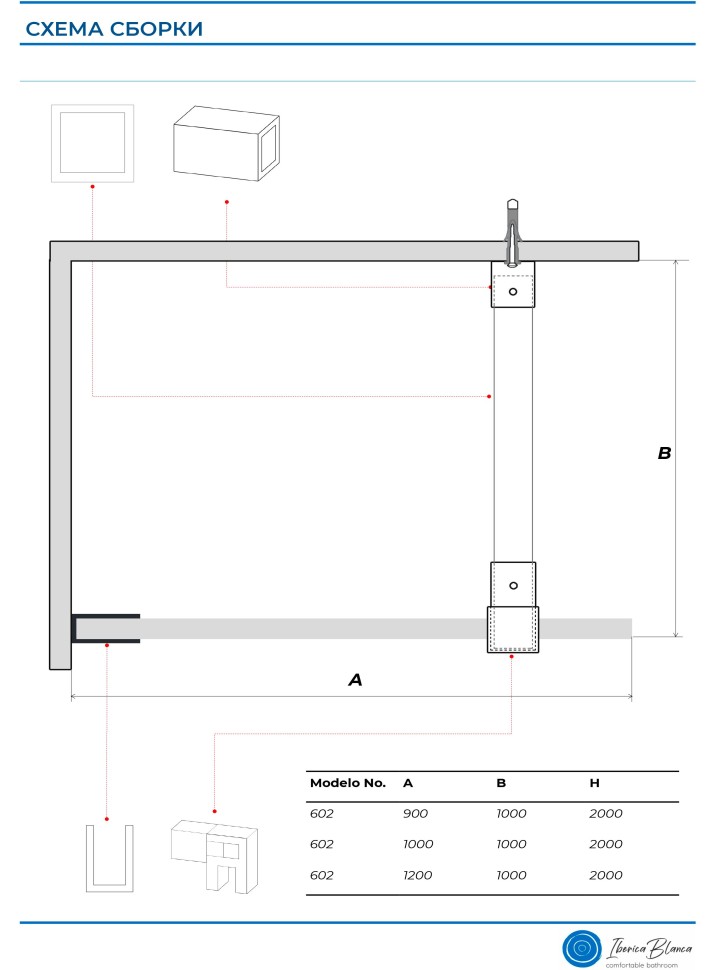
Неподвижное стекло для установки на пол в душевых как с поддоном, так и без. Опора жесткости с креплением к противоположной стене. Сторона, примыкающая к стене, обрамлена в профиль. Толщина стекла 8мм.
Характеристики
Материал профиля
алюминий
Толщина полотна двери мм
8
Цвет полотна двери
Прозрачный
Исполнение полотна двери
матовое
Серия
Mod.602 Walk In
Материал
стекло / алюминий
Ширина мм
1000 м
Высота мм
2000 м
Глубина мм
70 м
Форма
прямоугольная
Цвет
серый
Монтаж
напольный
Вес
40 кг
Бренд
IBERICA BLANCA
Страна
Россия
Гарантия
10 лет
Комплектация
душевая перегородка 1 шт., крепеж
Дополнительная информация
поверхность антикапля
Материал полотна двери
закаленное стекло
Назначение
для душа





































