Комплект 3в1 IBERICA BLANCA инсталляция SILENCIO MINI, унитаз TOLEDO ALTO белый, кнопка смыва ESTI-Q хром глянцевый (IB.001M.TLA.231.833)
Артикул:IB.001M.TLA.231.833
О товаре
Создайте идеальную ванную комнату с комплектом сантехники, который включает подвесной унитаз TOLEDO ALTO (арт. IB.TLA.231.1B1) и клавишу смыва ESTI-Q цвета хром глянцевый, ABS пластик (арт. IB.B083.003.002 ). Подвесной унитаз с безободковой системой смыва выполнен из белого фарфора, и имеет такие особенности как:
• отсутствие ободка не мешает потоку воды и не дает места для скопления грязи и бактерий
• чаша с технологией антивсплеск минимизирует возможность брызг и обеспечивает комфорт во время использования
• наноглазированное антибактериальное покрытие унитаза обеспечивает непревзойденный уровень гигиены, предотвращая размножение бактерий
• в комплекте тонкое, быстросъемное из дюропласта soft close
Клавиша смыва изготовлена из ударопрочного ABS-пластика, устойчива к внешним воздействиям, имеет привлекательный дизайн, что дополнит современный интерьер туалетных комнат. На матовой поверхности почти не остаются отпечатки пальцев по сравнению с глянцевой, это упрощает уход и позволяет сохранить первозданный вид. Инсталляция SILENCIO MINI представляет собой надежное и практичное решение для вашей ванной комнаты. Главное преимущество перед другими брендами заключаются в следующих особенностях:
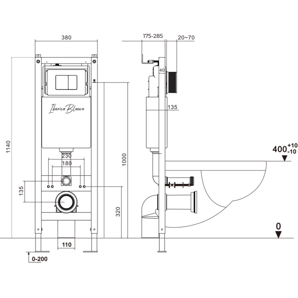
• имеет ширину 38 см и возможность установки в угол 90 градусов, совместима со всеми типами подвесных унитазов, межосевое расстояние которых составляет 180 или 230 мм.
• система смыва настроена с завода на 3 и 6 л, что делает ее эффективной и экономичной
• цельнолитой сливной бачок из HDPE пластика имеет шумоизоляцию, так же в комплекте идет шумоизоляционная пластина для подвесного унитаза
• сливной клапан для защиты от перелива
• впускной кран позволяет перекрыть поток воды в бачок отдельно от общей системы водоснабжения
• фильтр грубой очистки предустановлен с завода
• ножки рамы регулируются в диапазоне от 0 до 200мм.
• рама инсталляции выполнена из высокопрочной стали с антикоррозийным покрытием, что обеспечивает надежность и долговечность
Создайте идеальную ванную комнату с комплектом сантехники, который включает подвесной унитаз TOLEDO ALTO (арт. IB.TLA.231.1B1) и клавишу смыва ESTI-Q цвета хром глянцевый, ABS пластик (арт. IB.B083.003.002 ). Подвесной унитаз с безободковой системой смыва выполнен из белого фарфора, и имеет такие...
Материал сиденья
дюропласт
Характеристики
Серия
TOLEDO ALTO
Направление выпуска
горизонтальное (в стену)
Ширина мм
700 м
Высота мм
550 м
Глубина мм
1200 м
Цвет
белый
Монтаж
в капитальную стену и пол
Бренд
IBERICA BLANCA
Страна
Китай
Гарантия
20 лет
Вес
40 кг
Дополнительная информация
Безободковый, Система антивсплеск, антибактериальное покрытие / экономия воды / антигрязевое покрытие / обслуживание через ревизионное окно / угловая конструкция / пониженный уровень шума / защита от конденсата
Комплектация
Чаша, крепление скрытого монтажа, тонкое сиденье с микролифтом, крепления для сиденья / панель смыва, держатели 2 шт, толкатели 2 шт / инсталляция для подвесного унитаза (винт установочный 4 шт., кронштейн настенный 2 шт., клапан запорный угловой 1 шт., к
Режим слива воды
2 кнопки (эконом)
Объем, л
7
Сиденье с микролифтом
тонкое / не желтеет, не царапается, устойчиво к бытовой химии / быстросъемное / микролифт

















































